Перепланировка в 2025 году – это продуманная адаптация жилья под современные привычки, принципы энергоэффективности и «умные» технологии при строгом соблюдении норм и правил. В IAMDES мы всё чаще реализуем решения с открытыми кухнями-гостиными, трансформируемой мебелью, скрытыми гардеробными и рабочими нишами: это даёт ощущение дополнительной площади за счёт грамотного зонирования, света и рациональных систем хранения, сохраняя при этом несущие конструкции.
В этой статье – на примере реальных кейсов студии – мы покажем, как проект перепланировки квартиры или дома воплощается от идеи до «после».
В этой статье – на примере реальных кейсов студии – мы покажем, как проект перепланировки квартиры или дома воплощается от идеи до «после».
1) Превратить «чистовую» квартиру в удобный дом
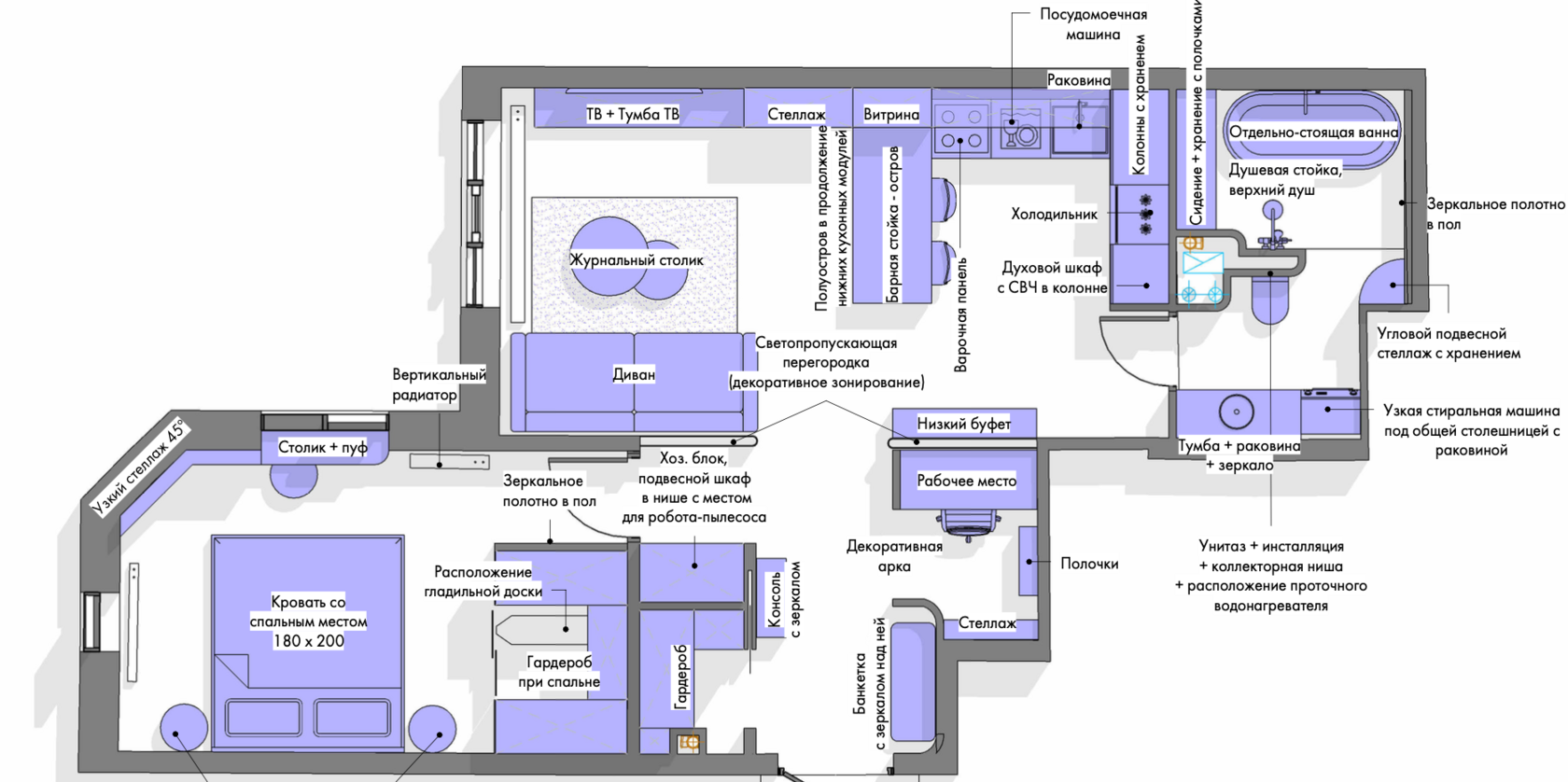
Наша клиентка приобрела квартиру в «чистовой» комплектации – без внутренних стен, с видимыми вентиляционными каналами и стояками, и с привязкой зон по планам застройщика. Предложенная застройщиком планировка не отличалась функциональностью: крошечная прихожая без места для шкафа, вход сразу в кухню, а доступ к санузлу – через жилую комнату. Так, ключевая задача дизайнера состояла в организации большой зоны кухни‑гостиной для жизни и общения, максимально компактной спальни, одного совмещенного санузла с прачечной и вместительной гардеробной.
Мы разработали планировочное решение, которое максимально отвечает этим пожеланиям: мокрые зоны оставили в пределах существующей инженерной привязки, один из санузлов трансформировали в гардероб‑постирочную с проходом в мастер‑спальню, добавили компактную детскую с гардеробной, оформили полноценную прихожую со встроенным шкафом и реализовали большую открытую кухню‑гостиную, комфортную для жизни. Функционально и эргономически решение оказалось идеальным для заказчицы – всё зонирование и хранение продуманы, коммуникации рассчитаны, отделка и мебель размещены с учётом удобства эксплуатации.
Однако формально согласовать такую планировку оказалось нельзя: застройщик закрепил кухонную нишу, и перенос кухни за пределы этой привязки противоречит установленным требованиям. Этот кейс наглядно показывает, как из типовой планировки можно сделать удобное жилое пространство и почему важно одновременно думать о дизайне и о правовой стороне перепланировки.
Мы разработали планировочное решение, которое максимально отвечает этим пожеланиям: мокрые зоны оставили в пределах существующей инженерной привязки, один из санузлов трансформировали в гардероб‑постирочную с проходом в мастер‑спальню, добавили компактную детскую с гардеробной, оформили полноценную прихожую со встроенным шкафом и реализовали большую открытую кухню‑гостиную, комфортную для жизни. Функционально и эргономически решение оказалось идеальным для заказчицы – всё зонирование и хранение продуманы, коммуникации рассчитаны, отделка и мебель размещены с учётом удобства эксплуатации.
Однако формально согласовать такую планировку оказалось нельзя: застройщик закрепил кухонную нишу, и перенос кухни за пределы этой привязки противоречит установленным требованиям. Этот кейс наглядно показывает, как из типовой планировки можно сделать удобное жилое пространство и почему важно одновременно думать о дизайне и о правовой стороне перепланировки.
2) «Маленькая, но продуманная»
Объект – компактная квартира около 40 м², где главная сложность была не только в площади, но и в том, что застройщик предложил прихожую без мест для хранения, а у клиента были масштабные референсы, несоизмеримые с площадью. Решение такой непростой «задачи» началось с логики перемещений: мы сместили вход в спальню, что позволило организовать в прихожей «парящий» встроенный шкаф и получить полноценную зону входа. За счёт перестановки входов и продуманного зонирования в гостиной разместились крупный диван, ТВ‑зона и центральный камин – симметрично по оси, поэтому камин смотрится уместно и не «перегружает» пространство. Большую роль сыграла трансформируемая мебель: барная стойка, превращающаяся в стол, компактные системы хранения и другие «механизмы», которые дали ощущения свободы без потери функциональности.
Санузел спроектирован так, чтобы вместить душевую, небольшую постирочную и отсечённый от общей зоны санузла унитаз – все необходимые удобства при минимальной площади. В спальне, благодаря смещению входа, появился длинный встроенный шкаф, а в прихожей – достаточное хранение. Если бы вход оставили первоначальным, шкафов бы не было вовсе. В итоге получилось сбалансированное, комфортное пространство, доказавшее, что грамотный дизайн‑проект перепланировки может кардинально изменить восприятие площади.
Санузел спроектирован так, чтобы вместить душевую, небольшую постирочную и отсечённый от общей зоны санузла унитаз – все необходимые удобства при минимальной площади. В спальне, благодаря смещению входа, появился длинный встроенный шкаф, а в прихожей – достаточное хранение. Если бы вход оставили первоначальным, шкафов бы не было вовсе. В итоге получилось сбалансированное, комфортное пространство, доказавшее, что грамотный дизайн‑проект перепланировки может кардинально изменить восприятие площади.
3) Из неудобной привязки стояков – в удобный рациональный план
Застройщик изначально «пришил» по бокам два служебных помещения – слева кладовку, справа санузел – что разделяло зону хранения и отдаляло гардероб от входа. Клиенты категорически не хотели иметь санузел у входа и просили один полноценный санузел на квартиру и отдельное рабочее место. Мы пересмотрели логику помещений: санузел при входе уменьшили и перераспределили его площадь в пользу расширения коридора, а само помещение у входа трансформировали в гардеробную с раздвижной дверью‑ширмой, которая визуально и функционально объединила гардероб с прихожей. В результате появилась объёмная зона входа с хранением – то, чего не давала исходная привязка инженерии.
Кладовку задействовали под мини‑кабинет: мы оформили её как рабочую нишу и сделали светопропускающую перегородку, продолжающую визуальную линию стены за диваном – благодаря этому пространство осталось воздушным, при этом рабочее место изолировано и удобно. В хозяйственный блок заложили возможность будущего подключения стиральной машины, не нарушая текущей планировки. Все изменения выполнялись в границах, которые не затрагивают несущие конструкции и инженерные привязки, что позволяет рассматривать их как комфортные и наименее трудозатратные варианты перепланировки.
Кладовку задействовали под мини‑кабинет: мы оформили её как рабочую нишу и сделали светопропускающую перегородку, продолжающую визуальную линию стены за диваном – благодаря этому пространство осталось воздушным, при этом рабочее место изолировано и удобно. В хозяйственный блок заложили возможность будущего подключения стиральной машины, не нарушая текущей планировки. Все изменения выполнялись в границах, которые не затрагивают несущие конструкции и инженерные привязки, что позволяет рассматривать их как комфортные и наименее трудозатратные варианты перепланировки.
4) Квартира «выходного дня» – максимум спальных мест и комфорт при ограничениях
Ключевая задача дизайнера на данном проекте – спроектировать квартиру площадью порядка 80 м² для редких, но многолюдных приездов большой семьи: обеспечить места для взрослых и детей, выделить мини‑кабинет и разместить мастер‑спальню рядом с балконом. Площадь и привязка газа не позволяли изменять кухню и инженерные узлы, поэтому мы работали только с перегородками комнат. Решение получилось компактным и продуманным: детская – минимальная спальня с проходом через встроенный шкаф, мастер‑спальня у балкона, отдельный кабинет, который выполняет и функцию дополнительного спального места при необходимости, а в гостиной оставили большой диван‑спальное место. Так, мы получили несколько вариантов размещения посетителей.
Такое решение позволило учесть и запрос на вместительный гардероб: выделили полноценную гардеробную для хранения чемоданов и сумок, а небольшие встроенные шкафы и трансформируемая мебель добавили гибкости. Понимая специфику «квартиры выходного дня», допущено компромиссное прохождение через шкаф в детскую – это снижает приватность ночью, но при нерегулярном проживании и большой семье такое решение оправдано. Важно, что все изменения – перераспределение внутренних перегородок и встроенных элементов – не затрагивали газовую зону и легко реализуемы с точки зрения согласований, если не требуется вмешательство в инженерные привязки.
Такое решение позволило учесть и запрос на вместительный гардероб: выделили полноценную гардеробную для хранения чемоданов и сумок, а небольшие встроенные шкафы и трансформируемая мебель добавили гибкости. Понимая специфику «квартиры выходного дня», допущено компромиссное прохождение через шкаф в детскую – это снижает приватность ночью, но при нерегулярном проживании и большой семье такое решение оправдано. Важно, что все изменения – перераспределение внутренних перегородок и встроенных элементов – не затрагивали газовую зону и легко реализуемы с точки зрения согласований, если не требуется вмешательство в инженерные привязки.
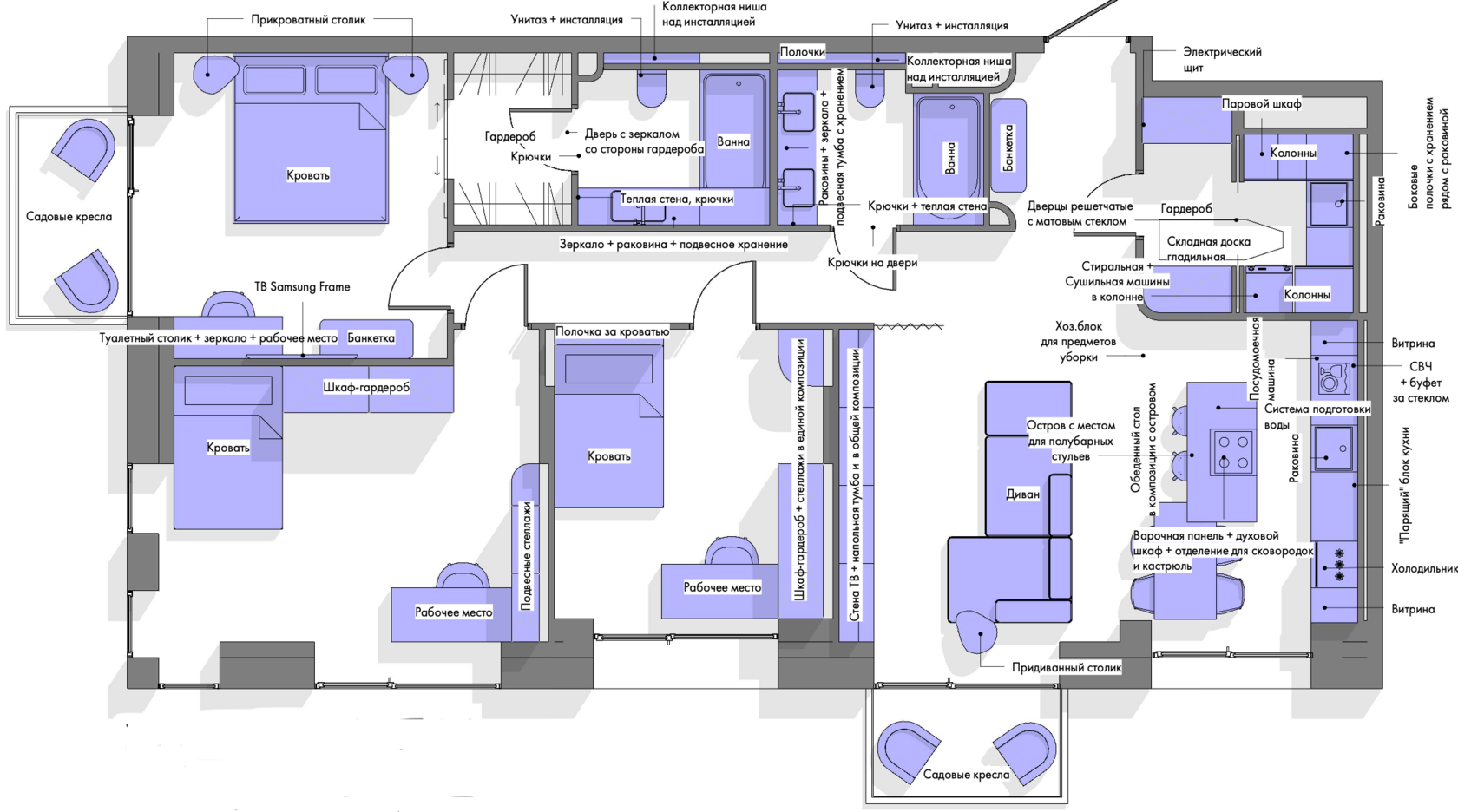
5) Премиум‑проект – простор, приватность и логика хранения
Проект реализован на большой площади и ориентирован на семью с двумя разнополыми детьми. Так, задача дизайнера – обеспечить отдельные комнаты для девочки и мальчика, просторную кухню‑гостиную, полноценную постирочную и вместительный гардероб. Исходная планировка от застройщика ставила выбор «либо‑либо»: либо мы жертвуем гардеробом в пользу большой постирочной, либо отказываемся от гардероба и планируем иные зоны хранения. Мы нашли третий путь – интегрировать постирочную в систему хранения, спрятав её за гардеробом, где сконцентрированы все инженерные коммуникации. Это позволило сэкономить полезную площадь и сделать зону хозяйственных коммуникаций неприметной и удобной в эксплуатации.
Ключевым композиционным решением стало объединение кухни‑гостиной с прихожей и коридором в единое пространство. Такое решение усиливает визуальную лёгкость, повышает проходимость и создает эффект «публичной» зоны, где собрания семьи или приёмы гостей проходят максимально комфортно. Также мы предусмотрели выдвижные дверцы и раздвижные системы в шкафах и гардеробных: они не только экономят место, но и создают аккуратную «сцену» при входе в гардероб, где можно переодеться и организовать хранение чемоданов и сезонных вещей.
В результате получилось упорядоченное, «воздушное» и в то же время очень функциональное планировочное решение.
Ключевым композиционным решением стало объединение кухни‑гостиной с прихожей и коридором в единое пространство. Такое решение усиливает визуальную лёгкость, повышает проходимость и создает эффект «публичной» зоны, где собрания семьи или приёмы гостей проходят максимально комфортно. Также мы предусмотрели выдвижные дверцы и раздвижные системы в шкафах и гардеробных: они не только экономят место, но и создают аккуратную «сцену» при входе в гардероб, где можно переодеться и организовать хранение чемоданов и сезонных вещей.
В результате получилось упорядоченное, «воздушное» и в то же время очень функциональное планировочное решение.
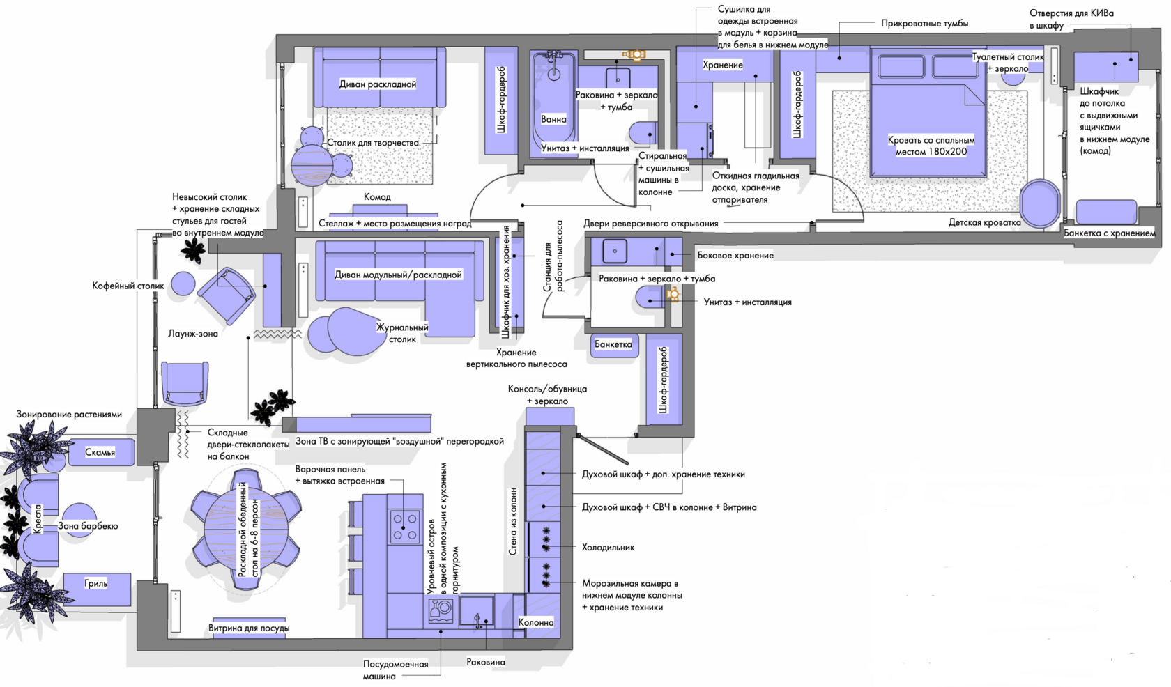
6) Объединённое пространство и уютный очаг без нарушения норм
Клиент обратился к нам с запросом объединить два смежных помещения в единую просторную кухню‑гостиную, создав комфортный и свободный переход из прихожей в коридор. Главной сложностью стало желание присоединить лоджию, что запрещено администрацией района. Мы предложили элегантное решение: вместо сноса стены установили складные двери со стеклопакетами. Они позволяют полностью распахнуть проём, визуально объединяя пространство с лоджией и наполняя его светом, но при этом сохраняют тепловой контур и не нарушают норм.
В центре внимания клиента был камин – он хотел, чтобы тот стал сердцем уютного дома. Мы разместили его таким образом, чтобы он служил естественным центром композиции, вокруг которого сформировались несколько функциональных зон. ТВ‑зона отделена лёгкой, «воздушной» перегородкой, которая не утяжеляет интерьер, но эффективно зонирует пространство между кухней, столовой и гостиной. Рядом с камином нашлось место для уютного диванчика, создающего нишу для отдыха.
Значительную площадь отвели под кухню, поскольку заказчики увлекаются кондитерским искусством и любят готовить, поэтому им требовалось обширное рабочее пространство и вместительные системы хранения для инвентаря. В результате нам удалось реализовать функциональное и гармоничное планировочное решение, где всё продумано до мелочей. Получилось по-настоящему свободное, комфортное и эстетичное пространство, полностью отвечающее запросам семьи.
В центре внимания клиента был камин – он хотел, чтобы тот стал сердцем уютного дома. Мы разместили его таким образом, чтобы он служил естественным центром композиции, вокруг которого сформировались несколько функциональных зон. ТВ‑зона отделена лёгкой, «воздушной» перегородкой, которая не утяжеляет интерьер, но эффективно зонирует пространство между кухней, столовой и гостиной. Рядом с камином нашлось место для уютного диванчика, создающего нишу для отдыха.
Значительную площадь отвели под кухню, поскольку заказчики увлекаются кондитерским искусством и любят готовить, поэтому им требовалось обширное рабочее пространство и вместительные системы хранения для инвентаря. В результате нам удалось реализовать функциональное и гармоничное планировочное решение, где всё продумано до мелочей. Получилось по-настоящему свободное, комфортное и эстетичное пространство, полностью отвечающее запросам семьи.
7) Разумная реорганизация – кухня, большая ванная и места для хранения
В данном случае мы полностью переосмыслили разводку кухни и провели все необходимые коммуникации с учётом функциональной задумки заказчиков: сместили рабочую зону, оптимизировали санитарные стояки и вентиляцию так, чтобы техника и мойка работали без компромиссов по эргономике. Это позволило получить удобную рабочую кухню с достаточной площадью для готовки и хранения.
Особенно эффектно получилось объединение ванной комнаты с соседней кладовой и гостевым санузлом: удалив перегородку и продумав зонирование, мы получили просторную комфортную ванную с отдельной душевой, местом для постирочной техники и удобной системой хранения.
А для решения задачи по хранению мы спроектировали «парящий» встроенный шкаф в нише спальни и органично встроили шкаф в прихожую: такие решения дают большое полезное место для одежды и аксессуаров, не загромождая пространство. В результате получилась гармоничная, продуманная планировка, где кухня, хозяйственная зона и хранение работают в связке, а интерьер остаётся лёгким и функциональным.
Особенно эффектно получилось объединение ванной комнаты с соседней кладовой и гостевым санузлом: удалив перегородку и продумав зонирование, мы получили просторную комфортную ванную с отдельной душевой, местом для постирочной техники и удобной системой хранения.
А для решения задачи по хранению мы спроектировали «парящий» встроенный шкаф в нише спальни и органично встроили шкаф в прихожую: такие решения дают большое полезное место для одежды и аксессуаров, не загромождая пространство. В результате получилась гармоничная, продуманная планировка, где кухня, хозяйственная зона и хранение работают в связке, а интерьер остаётся лёгким и функциональным.
Так, перепланировка – это всегда баланс между творческой задачей и техническо‑юридическими ограничениями: грамотная работа с инженерными привязками и продуманное зонирование позволяют превратить даже типовую планировку или маленькую квартиру в удобный, просторный и логичный дом. Часто решение лежит не в радикальном сносе стен, а в перестановке входов, использовании трансформируемой мебели, организации встроенных систем хранения и рациональной работе с хозяйственными блоками.