Санузел – это пространство, которое, несмотря на свою утилитарность, играет важную роль в создании комфорта и уюта в доме. Неправильная планировка может свести на нет все усилия по созданию стильного интерьера, а удачное решение, наоборот, способно превратить даже небольшое помещение в функциональное и эстетически привлекательное пространство.
В этой статье мы рассмотрим 5 самых интересных и удачных планировок санузлов, реализованных в наших проектах. Вы увидите, как грамотное зонирование, эргономичное расположение сантехники и продуманное освещение могут преобразить санузел до неузнаваемости.
В этой статье мы рассмотрим 5 самых интересных и удачных планировок санузлов, реализованных в наших проектах. Вы увидите, как грамотное зонирование, эргономичное расположение сантехники и продуманное освещение могут преобразить санузел до неузнаваемости.
В этом проекте перед дизайнером стояла задача – создать максимально функциональный и комфортный санузел, учитывая пожелания заказчика. Изначально было два отдельных помещения прямоугольной формы: одно предполагалось использовать как кладовую, а второе – как стандартный санузел. Дизайнер предложил смелое решение: объединить два помещения в одно, что позволило не только реализовать пожелания заказчика, но и создать просторный и многофункциональный санузел, нетипичный для квартир. Важно было разместить в нем отдельностоящую ванну, душевую, унитаз, раковину и вместительную систему хранения для постирочной, обеспечив при этом эргономичность и удобство для одновременного использования несколькими членами семьи.
После ликвидации перегородки между кладовой и санузлом образовалось открытое пространство, которое было грамотно зонировано. Вместо двух входов был сделан один, создающий целостное восприятие. Зонирование было достигнуто за счет нескольких приемов. Во-первых, зона ванны и душа выделена с помощью подиума, который служит не только визуальным акцентом, но и скрывает инженерные коммуникации. Во-вторых, при входе в санузел сразу видна раковина, что создает «буферную зону», отделяющую унитаз от остального пространства. В-третьих, четко определены функциональные зоны для унитаза, ванно-душевой зоны и системы хранения.
Планировка продумана с точки зрения эргономики, что обеспечивает удобный доступ ко всем элементам санузла, так что несколько членов семьи могут находиться в помещении одновременно, не испытывая неудобств. В интерьере использованы округлые формы и отделка микроцементом, придающие пространству мягкость и элегантность. Хотя микроцемент требует бережного отношения, он идеально вписался в общую концепцию дизайна. В результате объединения двух небольших помещений был создан просторный и функциональный санузел, больше напоминающий ванные комнаты в загородных домах.
После ликвидации перегородки между кладовой и санузлом образовалось открытое пространство, которое было грамотно зонировано. Вместо двух входов был сделан один, создающий целостное восприятие. Зонирование было достигнуто за счет нескольких приемов. Во-первых, зона ванны и душа выделена с помощью подиума, который служит не только визуальным акцентом, но и скрывает инженерные коммуникации. Во-вторых, при входе в санузел сразу видна раковина, что создает «буферную зону», отделяющую унитаз от остального пространства. В-третьих, четко определены функциональные зоны для унитаза, ванно-душевой зоны и системы хранения.
Планировка продумана с точки зрения эргономики, что обеспечивает удобный доступ ко всем элементам санузла, так что несколько членов семьи могут находиться в помещении одновременно, не испытывая неудобств. В интерьере использованы округлые формы и отделка микроцементом, придающие пространству мягкость и элегантность. Хотя микроцемент требует бережного отношения, он идеально вписался в общую концепцию дизайна. В результате объединения двух небольших помещений был создан просторный и функциональный санузел, больше напоминающий ванные комнаты в загородных домах.
В проекте «Американская классика» ключевой задачей было создать комфортный и функциональный мастер-санузел, примыкающий к спальне. При этом заказчики хотели максимально сохранить существующие перегородки и избежать масштабной перепланировки. Сложность заключалась в том, чтобы, не прибегая к кардинальным изменениям, сделать санузел более просторным и удобным. Дизайнеры IAMDES нашли оптимальное решение: незначительно сдвинули стену, отделяющую санузел от гардероба, что позволило «выиграть» несколько драгоценных квадратных «сантиметров», которые в итоге сыграли решающую роль. Перед работами были проведены тщательные исследования стен на предмет наличия пустот и мусора, а также укреплены существующие конструкции.
Визуальное расширение пространства было достигнуто благодаря использованию светлой цветовой гаммы в отделке стен, пола и потолка, что визуально увеличивает пространство и создает ощущение легкости. Отказ от излишнего декора и перегруженности деталями также способствует созданию ощущения простора и порядка. Несмотря на ограниченную площадь, в санузле удалось организовать все необходимые функциональные зоны: зону умывания, зону унитаза и зону душа. Использование компактной сантехники и мебели позволило максимально эффективно использовать доступное пространство.
Сохранение существующих конструкций, укрепление стен и внимание к деталям позволили реализовать проект в соответствии с пожеланиями заказчиков, не прибегая к масштабной перепланировке.
Визуальное расширение пространства было достигнуто благодаря использованию светлой цветовой гаммы в отделке стен, пола и потолка, что визуально увеличивает пространство и создает ощущение легкости. Отказ от излишнего декора и перегруженности деталями также способствует созданию ощущения простора и порядка. Несмотря на ограниченную площадь, в санузле удалось организовать все необходимые функциональные зоны: зону умывания, зону унитаза и зону душа. Использование компактной сантехники и мебели позволило максимально эффективно использовать доступное пространство.
Сохранение существующих конструкций, укрепление стен и внимание к деталям позволили реализовать проект в соответствии с пожеланиями заказчиков, не прибегая к масштабной перепланировке.
В данном случае перед дизайнером стояла задача: создать функциональный и визуально просторный санузел в условиях ограниченной площади. При этом важно было подчеркнуть лаконичность и чистоту линий, характерных для минималистичного дизайна. Для решения этой задачи дизайнеры IAMDES выбрали линейную планировку. Ключевым приемом, позволившим добиться максимальной экономии пространства, стало именно расположение всех основных элементов санузла – душ, раковина и унитаз – в один ряд вдоль стены.
Минималистичный дизайн подчеркивается использованием простых геометрических форм в сантехнике и мебели. Преобладание светлых и нейтральных оттенков в отделке и мебели создает ощущение легкости и простора, а отказ от излишних декоративных элементов позволяет сосредоточиться на функциональности и лаконичности дизайна. Использование встроенной мебели и сантехники позволяет сэкономить пространство и создать более аккуратный и организованный вид. Все коммуникации скрыты в стенах, что способствует созданию чистого и минималистичного интерьера.
Кейс демонстрирует, как простые и эффективные решения могут быть реализованы с большим успехом.
Минималистичный дизайн подчеркивается использованием простых геометрических форм в сантехнике и мебели. Преобладание светлых и нейтральных оттенков в отделке и мебели создает ощущение легкости и простора, а отказ от излишних декоративных элементов позволяет сосредоточиться на функциональности и лаконичности дизайна. Использование встроенной мебели и сантехники позволяет сэкономить пространство и создать более аккуратный и организованный вид. Все коммуникации скрыты в стенах, что способствует созданию чистого и минималистичного интерьера.
Кейс демонстрирует, как простые и эффективные решения могут быть реализованы с большим успехом.
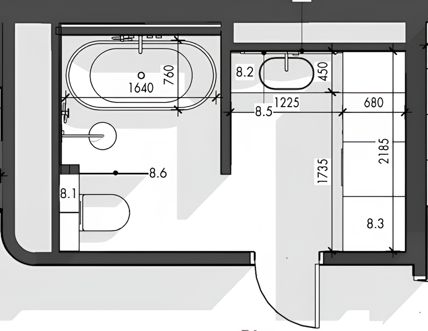
В апартаментах в ЖК Level Стрешнево санузел площадью 7 квадратных метров обладает значительным преимуществом – простором. В нем удалось разместить отдельную ванну с душем, большую раковину со столешницей, которую можно использовать в качестве зоны хранения, шкафчик для хранения возле раковины, а также организовать полноценную прачечную зону. При входе в санузел сразу виден большой шкаф со стиральной и сушильной машинами, который также выполняет функцию хранения бытовых принадлежностей.
Удачное размещение сантехнических приборов способствует удобству использования. Ванна находится в своей нише, что не только эстетично выглядит, но и упрощает проведение коммуникаций. Пространство продумано таким образом, чтобы обеспечить свободу движения и удобство в использовании, будь то загрузка стиральной машины или уборка помещения.
Дизайн санузла выдержан в стиле ваби-саби, с использованием натуральных материалов: дерева, текстуры камня и металла. Каменная раковина, установленная на акриловой столешнице, является интересным дизайнерским решением. Шторка, спускающаяся с потолка, создает воздушный и эстетичный эффект, заменяя традиционные стеклянные перегородки для тех, кто предпочитает более легкие и ненавязчивые решения. Высокие потолки дополнительно подчеркивают ощущение простора и свободы. В целом, этот санузел сочетает в себе функциональность, эстетику и комфорт, что делает его отличным примером гостевого санузла.
Удачное размещение сантехнических приборов способствует удобству использования. Ванна находится в своей нише, что не только эстетично выглядит, но и упрощает проведение коммуникаций. Пространство продумано таким образом, чтобы обеспечить свободу движения и удобство в использовании, будь то загрузка стиральной машины или уборка помещения.
Дизайн санузла выдержан в стиле ваби-саби, с использованием натуральных материалов: дерева, текстуры камня и металла. Каменная раковина, установленная на акриловой столешнице, является интересным дизайнерским решением. Шторка, спускающаяся с потолка, создает воздушный и эстетичный эффект, заменяя традиционные стеклянные перегородки для тех, кто предпочитает более легкие и ненавязчивые решения. Высокие потолки дополнительно подчеркивают ощущение простора и свободы. В целом, этот санузел сочетает в себе функциональность, эстетику и комфорт, что делает его отличным примером гостевого санузла.
В данном проекте особенно хочется отметить детский санузел на втором этаже: удачная планировка, заложенная еще на этапе проектирования дома, позволила дизайнерам студии создать гармоничное пространство, отвечающее всем потребностям.
Санузел оснащен двумя раковинами, что облегчает утренние и вечерние гигиенические процедуры для двоих детей. Подвесная мебель создает ощущение легкости и простора, а также облегчает уборку. Ванна расположена в нише, что создает уютную и безопасную зону для купания.
Дизайн санузла выдержан в минималистичном стиле, а использование керамики под камень и латунной вставки между широкоформатными плитами стало пожеланием заказчицы, добавляющим элегантности и изысканности в интерьер. Парящая мебель усиливает ощущение легкости и современного стиля. В целом, этот детский санузел сочетает в себе функциональность, безопасность и эстетическую привлекательность, что делает его идеальным пространством для детей.
Санузел оснащен двумя раковинами, что облегчает утренние и вечерние гигиенические процедуры для двоих детей. Подвесная мебель создает ощущение легкости и простора, а также облегчает уборку. Ванна расположена в нише, что создает уютную и безопасную зону для купания.
Дизайн санузла выдержан в минималистичном стиле, а использование керамики под камень и латунной вставки между широкоформатными плитами стало пожеланием заказчицы, добавляющим элегантности и изысканности в интерьер. Парящая мебель усиливает ощущение легкости и современного стиля. В целом, этот детский санузел сочетает в себе функциональность, безопасность и эстетическую привлекательность, что делает его идеальным пространством для детей.
Так, каждый кейс демонстрирует, что даже в таком функциональном пространстве, как санузел, можно создать стильный, комфортный и эргономичный интерьер, отвечающий индивидуальным потребностям и предпочтениям заказчиков.
Не бойтесь экспериментировать, ищите вдохновение в работах профессионалов и создавайте санузел, который будет радовать вас каждый день! А если вам нужна профессиональная помощь в разработке дизайн-проекта санузла вашей мечты, обращайтесь в нашу студию дизайна интерьера IAMDES – специалистам в создании стильных и функциональных интерьеров.
Не бойтесь экспериментировать, ищите вдохновение в работах профессионалов и создавайте санузел, который будет радовать вас каждый день! А если вам нужна профессиональная помощь в разработке дизайн-проекта санузла вашей мечты, обращайтесь в нашу студию дизайна интерьера IAMDES – специалистам в создании стильных и функциональных интерьеров.